Plan of subdivision

The Plan of Subdivision for registered plan RP002470, being "the land the subject of Plan of Subdivision No. 63108 in the Office of Titles being part of Crown Allotment 15, Parish of Boroondara, County of Bourke, provides a mystery.

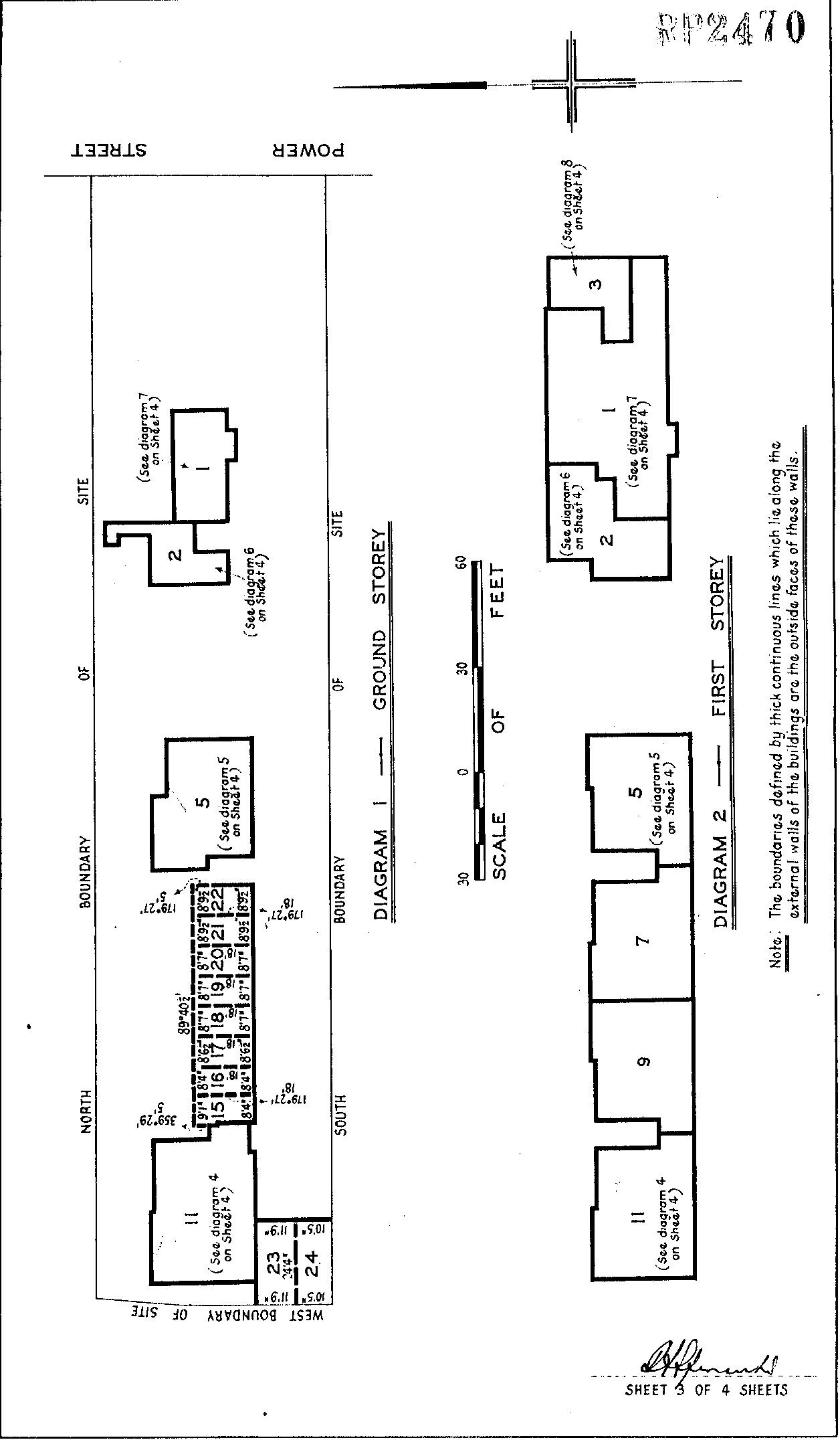
The plans indicate that there are 24 units, units 15 to 24 being "accessory units".  Units 1 to 12 are the residential units.

The plan omits units 13 and 14:  "3. Units 13 and 14 have been omitted from this plan"  .

Note 4 says "The common property is all the land in the parcel except the land in units 1 to 12 (both inclusive) and 15 to 24 (both inclusive)."  Consequently, while it is not clear from the plan where units 13 and 14 are located, they are actually part of the common property and consequently may not be assumed into any individual property.

 

click on these thumbnail
images to see a larger scale image
Page from Strata Plan of subdivision showing the description of the plan and detailing the inclusions in the following pages
  Page from Strata Plan of subdivision showing ground and first floor levels
  Page from Strata Plan of subdivision showing topmost level
     

 These images have been taken from documents obtained directly from the Titles Office.  Copies are available to owners on request to the Secretary (small cost)